Обяви За нас Контакти
Продава 2-СТАЕН
град Варна, Цветен квартал
ул.Невен
109 900 €
214 945.72 лв.

(1 832 €, 3 583.08 лв./m2)
Не се начислява ДДС
История на цената
Публикувана в 15:18 на 6 април, 2026 год.
Обявата е посетена 73 пъти.
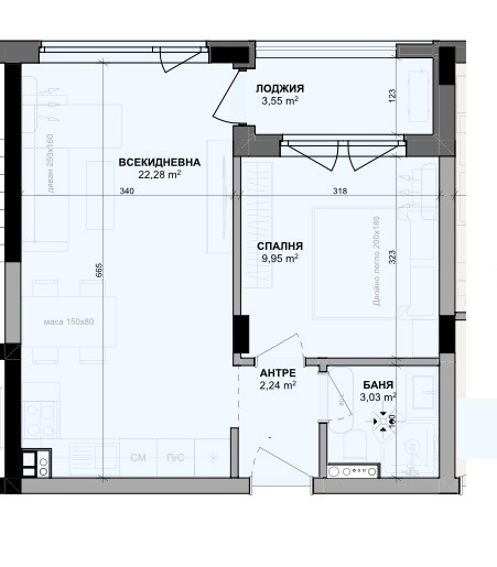
Площ:
60 m2
Етаж:
2-ри от 4
Строителство:
Тухла, Ще бъде въведен в експлоатация 2026 г.

Описание на имота:


ЦВЕТЕН КВАРТАЛ ДВУСТАЕН АПАРТАМЕНТ с ПАРКОМЯСТО ул.Невен НОВА СГРАДА
Никола Петров - 0894 466 979
Имотът представлява : Входно антре, дневна с кухня и трапезария с излаз на тераса, спалня с излаз на същата тераса, баня с тоалетна.
Изложение - югозиток.
Апартаментът е разположен на втори етаж малка четириетажна бутикова сграда с асансьор.
Към апартамента се продава паркомясто на преференциална цена от 15 000 .
Напреднало строителство - пред акт15!
Състояние : Жилището се издава съгласно БДС с опция завършване До ключ, изготвяне на проект за интериорен дизайн на преференциални цени от БРАВИС ДИЗАЙН. ОТЛИЧНА ЛОКАЦИЯ намираща се в ЦВЕТЕН КВАРТАЛ Местоположението е изключително удобно, с бърз достъп до главни булеварди, хипермаркети, училища, детски градини. * Като клиенти на Бравис Брокърс получавате най-добрите условия при нужда от ипотечен кредит.
Особености
Тухла
Асансьор
Контрол на достъпа
Саниран
За контакт:
0894466979
Брокер:
Никола Петров
0894466979
Офис: гр. Варна жк. Чайка 204 партер
Още оферти от брокера: Продава | Дава под наем | Купува | Наема
Агенция:
БРАВИС БРОКЪРС ООД
0886654726
БРАВИС БРОКЪРС ООД logo
В imot.bg от 2023 г.
bravisbrokers.imot.bg
Адрес:
област Варна, гр. Варна, гр.Варна, ж.к.Чайка, бл.204, офис 2 (срещу пазар Чайка)
ИЗПРАТИ ЗАПИТВАНЕ
ИЗПРАТИ ЗАПИТВАНЕТО

Продава 2-СТАЕН
град Варна, Цветен квартал
ул.Невен
Обява: 1b177547790499592

109 900 €
214 945.72 лв.
История на цената
(1 832 €, 3 583.08 лв./m2)

Не се начислява ДДС
ЗАПАЗИ ОБЯВАТА

Местоположение: град Варна, Цветен квартал, ул.Невен

Допълнителни данни за имотите в района и сравнение с други райони

Покажи

Период

и 4 месеца

* Средните цени са определени чрез медианна стойност